• صفحه اصلی
  • دوره های آموزشی
    دوره مدل سازی
    • تری دی مکس
    دوره رندرینگ و انیمیشن
    • وی ری
    • ورکشاپ داخلی وی ری7 + AI
    • آنریل انجین
    • تویین موشن
    • ونتیج – انیمیشن معماری
    دوره طراحی معماری و فاز 1
    • اتوکد
    • ضوابط طراحی
    دوره پرزانته معماری
    • فتوشاپ
    دوره های پرطرفدار
    • پک ویژه
    • پرو پک
    • کددیزاین
    • فول پک
  • آموزش های رایگان
    • اتوکد
    • تری دی مکس
    • ویری
    • فتوشاپ
  • سرزمین دانلود
    • اتوکد
    • آبجکت
    • اسکریپت
    • پلاگین
    • سایر نرم افزارها
    • نورهای هالوژنی
  • مقالات
  • درباره ما
  • صفحه اصلی
  • دوره های آموزشی
    دوره مدل سازی
    • تری دی مکس
    دوره رندرینگ و انیمیشن
    • وی ری
    • ورکشاپ داخلی وی ری7 + AI
    • آنریل انجین
    • تویین موشن
    • ونتیج – انیمیشن معماری
    دوره طراحی معماری و فاز 1
    • اتوکد
    • ضوابط طراحی
    دوره پرزانته معماری
    • فتوشاپ
    دوره های پرطرفدار
    • پک ویژه
    • پرو پک
    • کددیزاین
    • فول پک
  • آموزش های رایگان
    • اتوکد
    • تری دی مکس
    • ویری
    • فتوشاپ
  • سرزمین دانلود
    • اتوکد
    • آبجکت
    • اسکریپت
    • پلاگین
    • سایر نرم افزارها
    • نورهای هالوژنی
    • ونتیج
  • مقالات
  • درباره ما
ورود | ثبت نام
0 تومان 0 سبد خرید

با ما تماس بگیرید

۰۲۱-۲۸۴۲۷۷۴۷

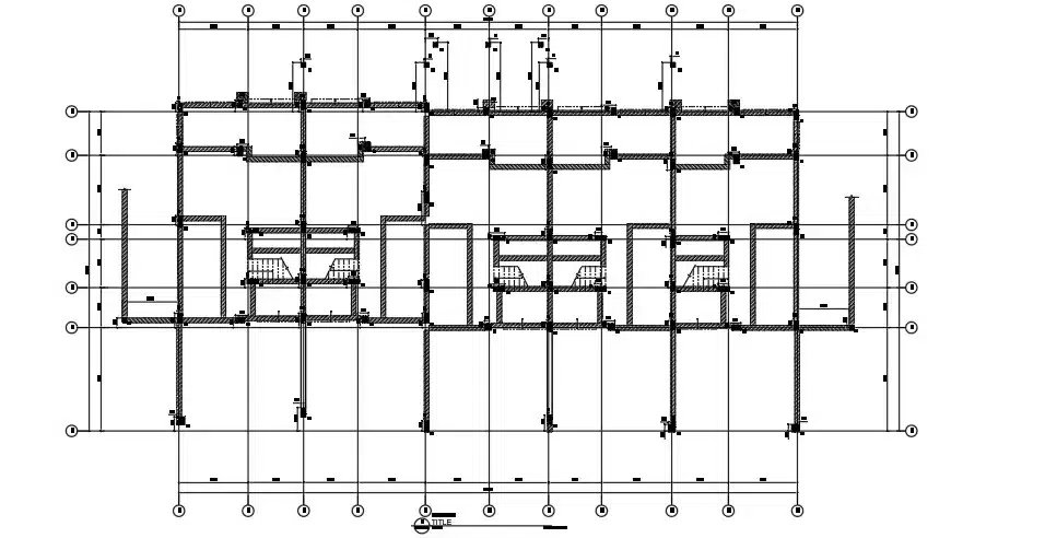
آکس بندی در پلان چیست؟

24 اردیبهشت 1403
ارسال شده توسط صهبا صادقی زاده
مقالات
1.34k بازدید
آکس بندی در پلان چیست؟

آکس بندی در پلان چیست؟

در این مقاله کاربرد پلان آکس بندی را بررسی میکنیم.

قبل از شروع آموزش در وبسایت آکادمی مهندس شریفی عضو شوید و از آموزش های رایگان ما بهره مند شوید. همچنین در بخش دوره های آموزشی وبسایت ما پکیج های تخصصی و صفر تا صد نرم افزارهای پرکاربرد معماری نظیر تری دی مکس، ویری، فتوشاپ، آنریل انجین، اتوکد و تویین موشن در اختیار شما عزیزان قرار داده شده که میتوانید با تهیه آن ها با به روز ترین متدهای آموزشی این نرم افزار ها را یاد بگیرید و وارد بازار کار شوید.

شروع مقاله:

ستون گذاری پلان یکی از مراحل مهم و اصلی در رنود طراحی یک فضا است و پایه و ریشه ساختمان است. پلان آکس بندی فاصله دقیق ستون ها از هم و ابعاد آن ها را مشخص میکند و یکی از مهمترین نقشه ها در در روند طراجی و اجرای یک ساختمان است. در ادامه تمام نکات مربوط به این پلان را بررسی میکنیم.

پلان آکس بندی چیست؟

در این پلان محل قرارگیری، امتداد و فاصله ستون‌ها با استفاده از خطوط محوری یا آکس نمایش داده میشود. این خط ها از وسط مقطع تیر و ستون بر روی نقشه عبور میکنند و خطوط فرضی هستند. این خطوط به صورت عمودی و افقی ترسیم میشوند و مرکز ستون ها در نقطه تلاقی خطوط عمودی و افقی قرار میگیرد. به طور کلی این پلان موقعیت دقیق قرار گیری ستون ها را مشخص میکند.

آکس بندی در پلان چیست؟

مراحل ترسیم آکس بندی در پلان

برای ترسیم این پلان باید مراحل زیر را انجام دهید:

  • تعیین محل قرار گیری ستون ها
  • ترسیم ستون ها در نقشه
  • ترسیم خطوط عمودی و افقی آکس از روی محل قرارگیری ستون ها

نام گذاری خطوط آکس

برای خواندن نقشه آکس بندی لازم است خطوط آکس را اندازه گذاری کنید. برای این کار خطوط آک را از لبه نقشه تا حدود یک الی دو سانت ادامه میدهیم و یک دایره یا مربع در انتهای آن ترسیم میکنیم. خطوط عمودی معمولا با حروف انگلیسی نام گذاری میشوند و خطوط افقی به صورت عددی. به طور مثال ستون A3 یعنی ستونی که در ردیف عمودی A و ردیف افقی 3 قرار دارد.

آکس بندی در پلان چیست؟

تعیین محل ستون ها در پلان آکس بندی

برای تعیین محل قرارگیری ستون ها در پلان باید به نکات زیر توجه کنید:

  • فاصله ستون‌ها به صورتي باشد كه با حداقل تعداد ستون، كل بار‌هاي ساختمان به زمين منتقل شود
  • ستون ها در زیبایی و ارتباط ساختمان تاثیر نگذارد
  • تا جای ممکن یتون ها در دیوار و کمد ها مخفی شود
  • در صورت امکان ستون ها در فاصله مساوی از هم قرار بگیرند
  • در تعيين محل ستون‌ها در قسمت های مهم ساختمان مانند دستگاه پله، آسانسور، نورگيرها، داكت‌ها و … دقت شود. بهتر است در چهارگوشه‌ی پله ستون قرار بگیرد
  • ستون ها در پارکینگ مانع رفت و آمد ماشین ها نشود
آموزش کامل اتوکد | آموزش AutoCAD

اهمیت آکس بندی پلان در طراحی و اجرا

این پلان در طراحی و اجرا اهمیت زیادی دارد چرا که محل دقیق قرارگیری ستون ها به کمک همین پلان مشخص میشود و به کمک آن میتوانیم ستون ها را در دقیق ترین حالت ممکن اجرا کنیم. همچنین به کمک آکس ها میتوانیم عمل انطباق را انجام دهیمو از اشتباهات اجرایی تا حد ممکن جلوگیری کنیم.

شما میتوانید با تهیه پکیج اتوکد صفر تا صد اتوکد را در سریعترین زمان ممکن یاد بگیرید.. از اینکه در این آموزش با ما همراه بودید متشکریم و امیدواریم که این آموزش براتون مفید بوده باشه. 

اگر سوال یا مشکلی داشتید در قسمت نظرات با ما در میان بگذارید. ممنون از حمایت همیشگیتون. آکادمی شریفی

رویات رو طراحی کن و با طراحیت دنیا رو بساز.

آکادمی شریفی

برای دیدن آموزش های ما در اینستاگرام به پیج ما مراجعه کنید

Instagram
3.7/5 - (3 امتیاز)
اشتراک گذاری:
برچسب ها: آکس بندیآکس بندی پلان چیست؟آکس بندی در پلانآکس بندی در پلان چیست؟پلان آکس بندیپلان آکس بندی چیست؟

مطالب زیر را حتما مطالعه کنید

دانلود Chaos Vantage
دانلود ونتیج نسخه 2.8.0 | Chaos Vantage 2.8.0 با قابلیت‌های جدید
تویین موشن 2026
دانلود تویین موشن 2026 Twinmotion + آموزش
دانلود کرونا رندر
دانلود کرونا رندر 12.1 Chaos Corona برای تری دی مکس+ آموزش
دانلود توکد
دانلود اتوکد Autodesk AutoCAD 2026 + کرک و آموزش
دانلود تری دی مکس 2026
دانلود آخرین ورژن تری دی مکس Autodesk 3ds Max 2026
دانلود فتوشاپ 2026
دانلود فتوشاپ (photoshop 2026)
قدیمی تر کسب درآمد در دوران دانشجویی معماری
جدیدتر اصول شیت بندی معماری

دیدگاهتان را بنویسید لغو پاسخ

جستجو در مطالب
جستجو برای:
جدیدترین دوره ها
  • آموزش ونتیج - انیمیشن معماری
  • ورکشاپ داخلی وی ری 7 + هوش مصنوعی
  • پرو پک (تریدی مکس + وی ری + آنریل انجین)
  • کددیزاین (اتوکد + فاز1)
  • ضوابط طراحی پلان (فاز1)
  • آموزش اتوکد | آموزش AutoCAD
  • آموزش آنریل انجین (Unreal Engine)
  • آموزش انیمیشن معماری (Mr.Twinmotion)
  • آموزش تری دی مکس ( آرکی مکس )
  • آموزش وی ری (وی ری آرکی)
  • پست پروداکشن حرفه ای (مستر پوپو)
  • فول پک آکادمی
جدیدترین نوشته ها
  • مقایسه تری دی مکس و رویت
  • دانلود ونتیج نسخه 2.8.0 | Chaos Vantage 2.8.0 با قابلیت‌های جدید
  • دانلود تویین موشن 2026 Twinmotion + آموزش
  • دانلود کرونا رندر 12.1 Chaos Corona برای تری دی مکس+ آموزش
  • دانلود اتوکد Autodesk AutoCAD 2026 + کرک و آموزش
ارتباط مستقیم در تلگرام ارتباط مستقیم در واتساپ تماس با ما
آکادمی آموزشی مهندس سعید شریفی فعالیت جدی خود را از سال 1399 آغاز نموده و با بهره گیری از دانش ، تجربه 13 ساله و اطلاعات به روز در زمینه معماری و نرم افزارهای کاربردی که نیاز اصلی جامعه مهندسی میباشد شروع به تولید دوره های آموزشی انواع نرم افزاهای معماری با بهترین کیفیت آموزشی کرده است.
Instagram Telegram-plane Whatsapp Youtube
دسترسی سریع
  • حساب کاربری من
  • دوره های آموزشی
  • مقالات
  • درباره ما
  • تماس با ما
خبرنامه
جهت اطلاع از رویدادهای جدید، لطفا ایمیل خود را وارد نمایید
تلفن

با ما تماس بگیرید ۰۲۱۲۸۴۲۷۷۴۷

تلگرام

ارتباط مستقیم تلگرام

ایمیل

ایمیل مجموعه info@3dsharifi.com

Designed by Cafeseo
ورود ×
کد تایید
لطفاً کد تأیید ارسال شده به را تایپ کنید
ارسال
رمز عبور خود را فراموش کرده اید؟
ورود با کد تایید
ارسال مجدد کد تایید(00:60)
حساب کاربری ندارید؟
عضویت
ارسال مجدد کد تایید(00:60)
بازگشت به صفحه ورود
ارسال مجدد کد تایید (00:60)
بازگشت به صفحه ورود