• صفحه اصلی
  • دوره های آموزشی
    دوره مدل سازی
    • تری دی مکس
    دوره رندرینگ و انیمیشن
    • وی ری
    • ورکشاپ داخلی وی ری7 + AI
    • آنریل انجین
    • تویین موشن
    • ونتیج – انیمیشن معماری
    دوره طراحی معماری و فاز 1
    • اتوکد
    • ضوابط طراحی
    دوره پرزانته معماری
    • فتوشاپ
    دوره های پرطرفدار
    • پک ویژه
    • پرو پک
    • کددیزاین
    • فول پک
  • آموزش های رایگان
    • اتوکد
    • تری دی مکس
    • ویری
    • فتوشاپ
  • سرزمین دانلود
    • اتوکد
    • آبجکت
    • اسکریپت
    • پلاگین
    • سایر نرم افزارها
    • نورهای هالوژنی
  • مقالات
  • درباره ما
  • صفحه اصلی
  • دوره های آموزشی
    دوره مدل سازی
    • تری دی مکس
    دوره رندرینگ و انیمیشن
    • وی ری
    • ورکشاپ داخلی وی ری7 + AI
    • آنریل انجین
    • تویین موشن
    • ونتیج – انیمیشن معماری
    دوره طراحی معماری و فاز 1
    • اتوکد
    • ضوابط طراحی
    دوره پرزانته معماری
    • فتوشاپ
    دوره های پرطرفدار
    • پک ویژه
    • پرو پک
    • کددیزاین
    • فول پک
  • آموزش های رایگان
    • اتوکد
    • تری دی مکس
    • ویری
    • فتوشاپ
  • سرزمین دانلود
    • اتوکد
    • آبجکت
    • اسکریپت
    • پلاگین
    • سایر نرم افزارها
    • نورهای هالوژنی
    • ونتیج
  • مقالات
  • درباره ما
ورود | ثبت نام
0 تومان 0 سبد خرید

با ما تماس بگیرید

۰۲۱-۲۸۴۲۷۷۴۷

ترسیم سریع برش در اتوکد

11 آبان 1402
ارسال شده توسط صهبا صادقی زاده
اتوکد
3.49k بازدید
ترسیم سریع برش در اتوکد

ترسیم سریع برش در اتوکد

در این آموزش روش ترسیم سریع برش در اتوکد را یاد میگیریم.

قبل از شروع آموزش در وبسایت آکادمی مهندس شریفی عضو شوید و از آموزش های رایگان ما بهره مند شوید. همچنین در بخش دوره های آموزشی وبسایت ما پکیج های تخصصی و صفر تا صد نرم افزارهای پرکاربرد معماری نظیر تری دی مکس، ویری، فتوشاپ، آنریل انجین، اتوکد، ضوابط طراحی و تویین موشن در اختیار شما عزیزان قرار داده شده که میتوانید با تهیه آن ها با به روز ترین متدهای آموزشی این نرم افزار ها را یاد بگیرید و وارد بازار کار شوید.

شروع آموزش:

ترسیم برش همیشه یکی از مواردی بوده که افراد زیادی را درگیر میکند و دقت بالایی میخواهد. اگرچه این کار به کمک اتوکد بسیار ساده تر شده است اما باز هم اگر بخواهیم به روش های معمول برش را ترسیم کنیم دقت و سرعت کار ما کاهش پیدا میکند. در این آموزش روش ترسیم سریع برش در اتوکد را به کمک دستور clip یاد میگیریم.

ابتدا برای استفاده از این دستور پلان مورد نظر را انتخاب میکنیم و به کمک دستور block آن را به بلاک تبدیل میکنیم.

ترسیم سریع برش در اتوکد

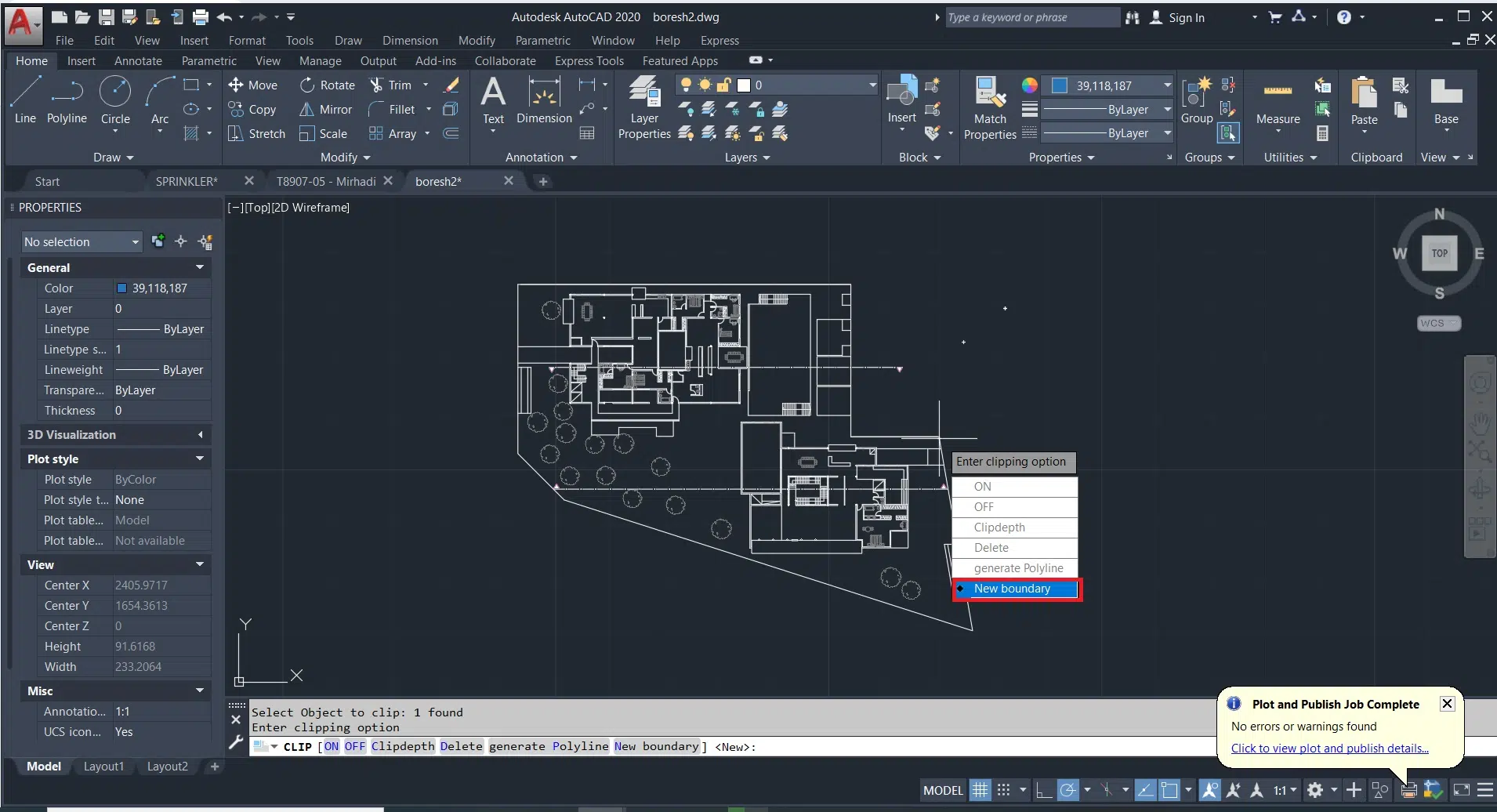
دستور clip را با تایپ cl و زدن اینتر فعال میکنیم و پلان را انتخاب میکنیم.

ترسیم سریع برش در اتوکد

در ادامه پنجره ای باز میشود که در آن گزینه new boundry را انتخاب میکنیم و با انتخاب حالت rectangular محدوده ای از پلان را که بعد از خط برش دیده میشود انتخاب میکنیم. سپس به سادگی میتوانیم خطوط پلان را برای ترسیم برش انتقال دهیم.

ترسیم سریع برش در اتوکد

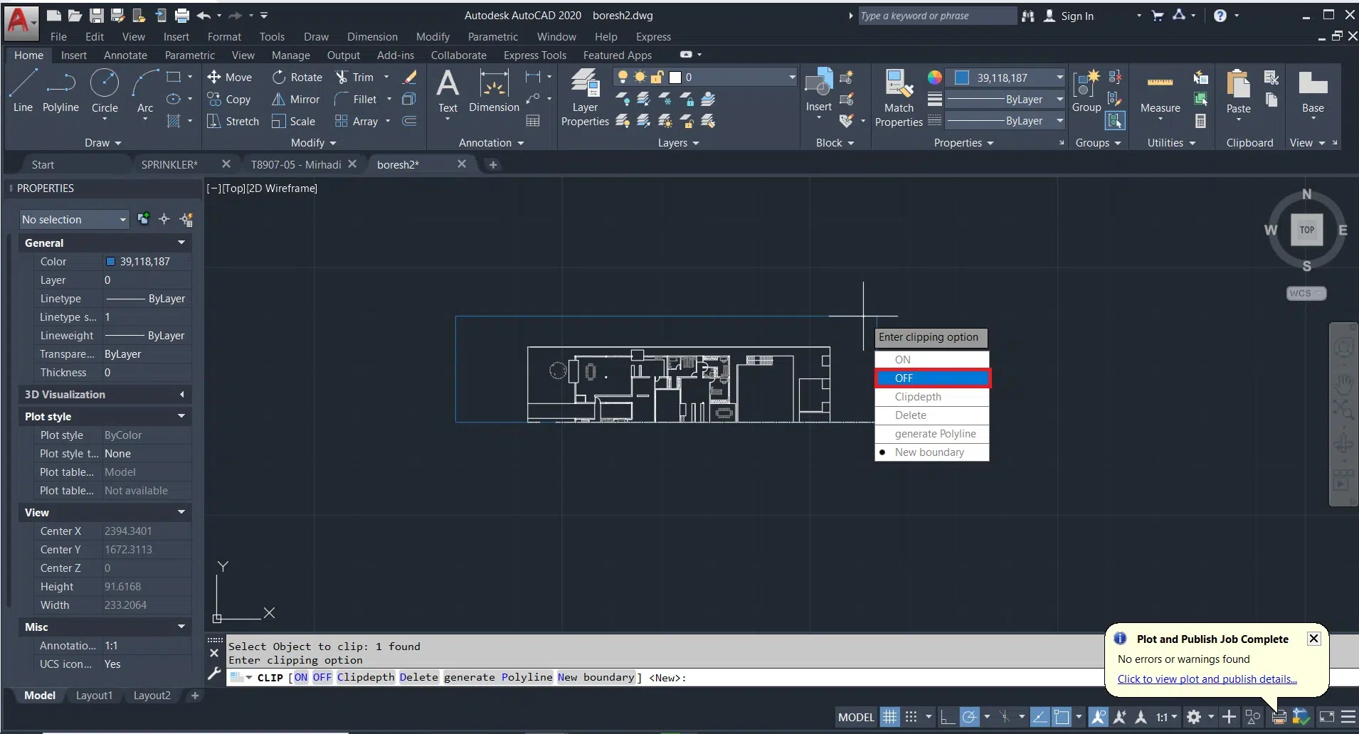
اگر خواستید پلان را به حالت اولیه برگردانید کافی است یک بار دیگر دستور clip را انتخاب کنید و پلان را انتخاب کنید و در پنجره باز شده گزینه off را فعال کنید.

ترسیم سریع برش در اتوکد

برای یادگیری کامل این ضوابط میتونین پکیج ضوابط طراحی پلان (فاز1) را تهیه کنید و اصولی طراحی کنید. از اینکه در این آموزش با ما همراه بودید متشکریم و امیدواریم که این آموزش براتون مفید بوده باشه. 

اگر سوال یا مشکلی داشتید در قسمت نظرات با ما در میان بگذارید. ممنون از حمایت همیشگیتون. آکادمی شریفی

رویات رو طراحی کن و با طراحیت دنیا رو بساز.

آکادمی شریفی

برای دیدن آموزش های ما در اینستاگرام به پیج ما مراجعه کنید

Instagram
4/5 - (3 امتیاز)
اشتراک گذاری:

مطالب زیر را حتما مطالعه کنید

دانلود توکد
دانلود اتوکد Autodesk AutoCAD 2026 + کرک و آموزش
تغییر اسکیل Dimension در اتوکد (دستور Dimscale)
تغییر اسکیل Dimension در اتوکد (دستور Dimscale)
تایپ علامت قطر در اتوکد
تایپ علامت قطر در اتوکد
دستور Find در اتوکد برای تغییر متن های مشابه
دستور Find در اتوکد برای تغییر متن های مشابه
نوشتن علامت مثبت و منفی در اتوکد
نوشتن علامت مثبت و منفی در اتوکد
روش نصب لیسپ DCD در اتوکد
روش نصب لیسپ DCD در اتوکد
قدیمی تر اندازه گذاری سریع در اتوکد
جدیدتر کپی کردن آبجکت در یک مسیر در تری دی مکس

دیدگاهتان را بنویسید لغو پاسخ

جستجو در مطالب
جستجو برای:
جدیدترین دوره ها
  • آموزش ونتیج - انیمیشن معماری
  • ورکشاپ داخلی وی ری 7 + هوش مصنوعی
  • پرو پک (تریدی مکس + وی ری + آنریل انجین)
  • کددیزاین (اتوکد + فاز1)
  • ضوابط طراحی پلان (فاز1)
  • آموزش اتوکد | آموزش AutoCAD
  • آموزش آنریل انجین (Unreal Engine)
  • آموزش انیمیشن معماری (Mr.Twinmotion)
  • آموزش تری دی مکس ( آرکی مکس )
  • آموزش وی ری (وی ری آرکی)
  • پست پروداکشن حرفه ای (مستر پوپو)
  • فول پک آکادمی
جدیدترین نوشته ها
  • مقایسه تری دی مکس و رویت
  • دانلود ونتیج نسخه 2.8.0 | Chaos Vantage 2.8.0 با قابلیت‌های جدید
  • دانلود تویین موشن 2026 Twinmotion + آموزش
  • دانلود کرونا رندر 12.1 Chaos Corona برای تری دی مکس+ آموزش
  • دانلود اتوکد Autodesk AutoCAD 2026 + کرک و آموزش
ارتباط مستقیم در تلگرام ارتباط مستقیم در واتساپ تماس با ما
آکادمی آموزشی مهندس سعید شریفی فعالیت جدی خود را از سال 1399 آغاز نموده و با بهره گیری از دانش ، تجربه 13 ساله و اطلاعات به روز در زمینه معماری و نرم افزارهای کاربردی که نیاز اصلی جامعه مهندسی میباشد شروع به تولید دوره های آموزشی انواع نرم افزاهای معماری با بهترین کیفیت آموزشی کرده است.
Instagram Telegram-plane Whatsapp Youtube
دسترسی سریع
  • حساب کاربری من
  • دوره های آموزشی
  • مقالات
  • درباره ما
  • تماس با ما
خبرنامه
جهت اطلاع از رویدادهای جدید، لطفا ایمیل خود را وارد نمایید
تلفن

با ما تماس بگیرید ۰۲۱۲۸۴۲۷۷۴۷

تلگرام

ارتباط مستقیم تلگرام

ایمیل

ایمیل مجموعه info@3dsharifi.com

Designed by Cafeseo
ورود ×
کد تایید
لطفاً کد تأیید ارسال شده به را تایپ کنید
ارسال
رمز عبور خود را فراموش کرده اید؟
ورود با کد تایید
ارسال مجدد کد تایید(00:60)
حساب کاربری ندارید؟
عضویت
ارسال مجدد کد تایید(00:60)
بازگشت به صفحه ورود
ارسال مجدد کد تایید (00:60)
بازگشت به صفحه ورود